Hôtel Particulier, Rue MURILLO 75008 Paris

Le projet du 6 rue Murillo incarne une remarquable combinaison entre l'élégance du XIXème siècle parisien et une vision contemporaine de l'art de vivre. Conçu par l’agence Wilmotte & Associés Architectes, ce nouvel hôtel particulier se pare des codes prestigieux qui caractérisent les somptueuses demeures parisiennes.

L'emplacement privilégié de cette résidence sur le Parc Monceau, voisine des illustres hôtels particuliers des grandes familles Pereire, Rothschild, Cernuschi, Menier et Camondo, confère au 6 rue Murillo une aura d'exclusivité et de distinction.

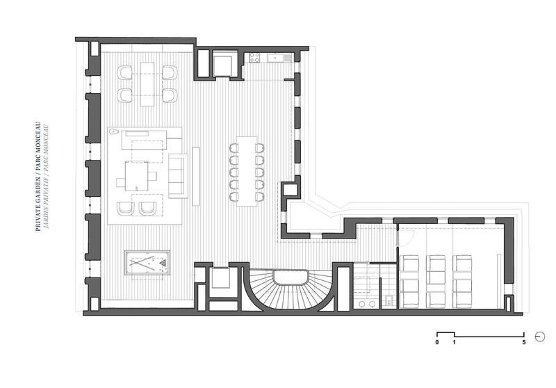
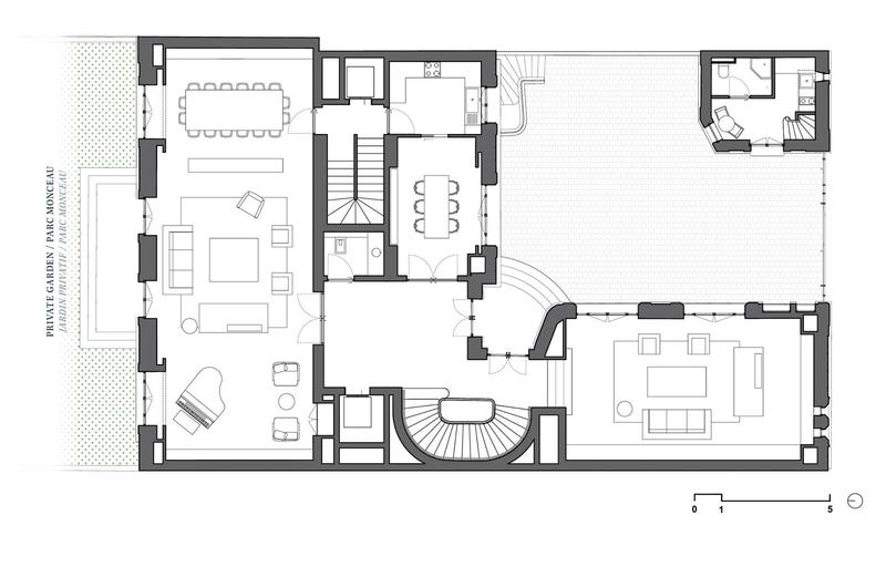
Réparti sur six niveaux, dont un sous-sol, l'espace intérieur d'environ 1 370 m2 est l’expression d'un cadre de vie raffinée. L’architecture néo-Louis XIII du bâtiment et ses intérieurs ont été réinventés par Jean Michel Wilmotte et ses équipes puis imaginée comme une invitation à une expérience unique et exclusive.

Le plan de l'hôtel particulier est agencé comme un parcours, une suite d'évènements harmonieux qui offrent une grande lisibilité et une parfaite unité à l'ensemble. Chaque espace est pensé sur-mesure avec un souci exceptionnel du détail pour correspondre au mieux à l'esprit du lieu et aux besoins des futurs habitants.

Conçu selon le principe entre cour et jardin, la façade principale de l’hôtel particulier du 6 rue Murillo est tournée vers la cour d'honneur, tandis que la façade arrière s'ouvre sur un splendide jardin privé donnant accès au Parc Monceau. De grandes fenêtres et baies vitrées permettent de baigner les intérieurs de lumière naturelle. Ces ouvertures généreuses offrent également des vues imprenables sur le parc Monceau.

Prix : 67 340 000 € Frais d'agence inclus

Contact : M. Sebastien BLANC +33 6 58 59 37 17

 

 

Version imprimable | Plan du site
© ETOILE MONCEAU

Site créé par Patrick Benichou (2006)